Kiko Kostadinov
Year
2025Type
RetailStatus
CompleteLocation
London
FEATURED ON
Hypebeast
Superfuture
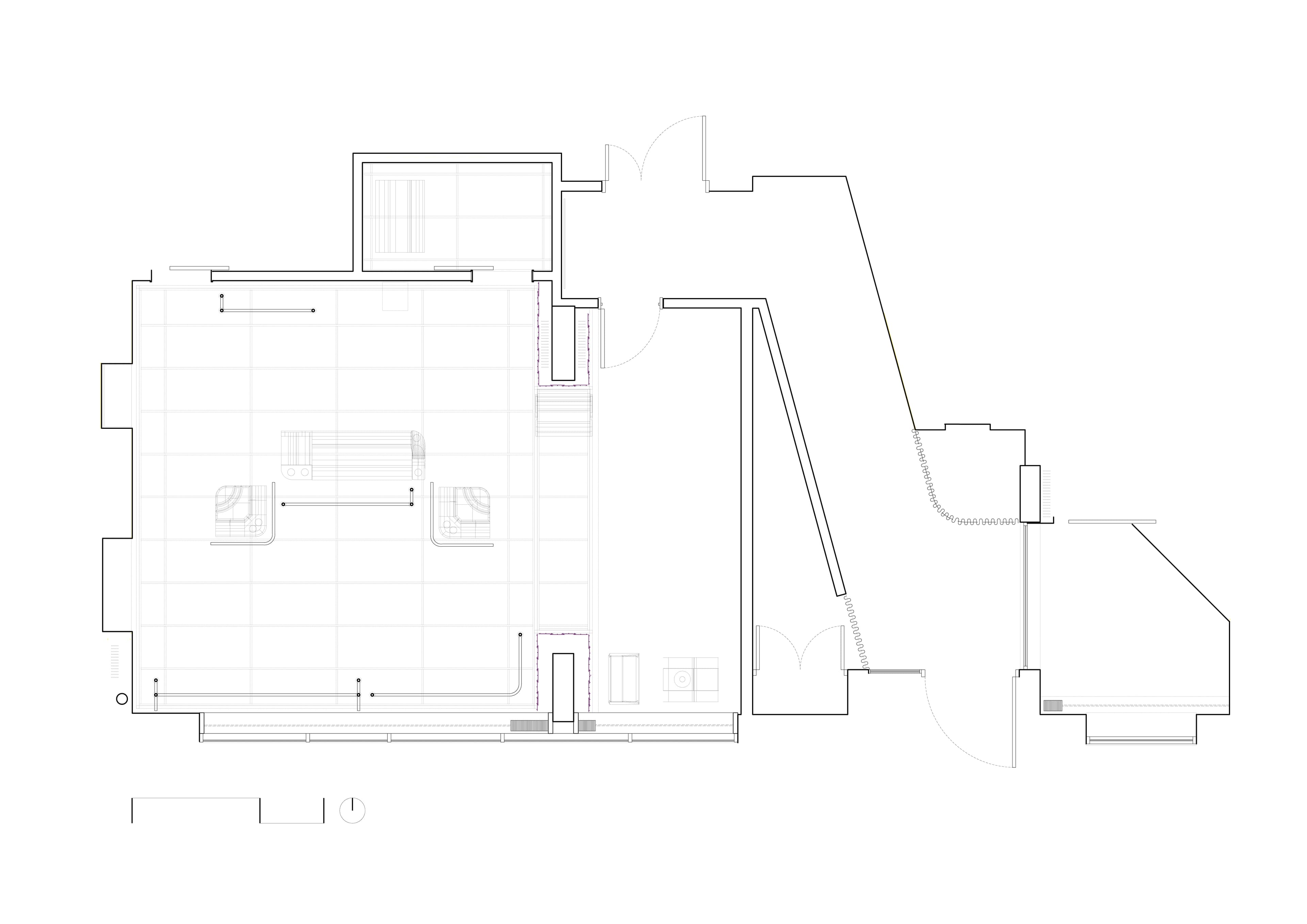
The first London flagship for Kiko Kostadinov and the brand’s third global store. Located in Haggerston, the project continues Kiko’s ongoing collaboration with artist Ryan Trecartin, with THISS Studio commissioned to design the interior.
The project re-sites Stunt Tank (2016) created by Trecartin and Lizzie Fitch into a fully functioning retail environment that brings together performance, spatial choreography, and material reinterpretation.
The project began with a close study of the original installation. Pontoon railings, cream leather boat seating, ceiling tiles and carpeting — physical elements conceived with longtime collaborator Rhett LaRue — were carefully deconstructed, translated, and rebuilt into the architecture of the store. Chrome pontoon railings were inverted and suspended from the ceiling as garment rails. Boat seating was redistributed throughout the interior, including the fitting room. The installation’s brown carpeting returns as deep maroon, enveloping the floors and extending up the walls, where carved recesses form integrated shelving and display niches. Softly backlit PVC curtains fall from an illuminated ceiling, mediating the store’s structural columns and creating a glowing threshold into the space.
Situated directly beneath the brand’s design studios, the flagship is shaped by a porous relationship between the public realm and the private world of making. A saturated red tunnel draws visitors off the street, guiding them past a dedicated window-front exhibition space for rotating artist presentations and through the everyday movement of staff and designers above. This proximity gives the store a lived, dynamic quality — a space where the creative process remains present.
Adaptable and atmospheric, KK London extends beyond retail to host dinners, presentations, and community gatherings. For THISS Studio, the project is both an interpretation and a transformation: a living architecture that reframes an artwork into a spatial experience, and a site for encounter within the evolving world of Kiko Kostadinov.
CREDITS
Photography - Studio Hahn
Artwork - Stunk Tank: Ryan Trecartin & Lizzie Fitch















